Продажа офиса, Уфа, Мира ул., 7, республика Башкортостан
- Регион
- Башкортостан республика
| Адрес | Уфа, Мира ул., 7Объект на карте |
- Этаж
- 1 этаж в 1-этажном доме
- Общая площадь
- 1324.80 м2
- Дата обновления
- 19.04.2026
Код лота: 62C46C9-4001-8305-1. Реализуется на торгах.
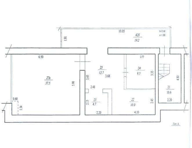
Реализация через аукцион! Нежилые помещения первого этажа и подвала девятиэтажного жилого здания . Кадастровый номер 02: 55: 030182: 168, 02: 55: 030182: 167, 02: 55: 030182: 608, 02: 55: 030182: 607, 02: 55: 030182: 560. Площадь объекта 1 324,8 кв. м., места общего пользования 22,5 кв. м. Этаж / этажность 1, подвал / 9. Обременения (ограничения) не зарегистрировано. Муниципальная собственность. Записи в Едином государственном реестре прав на недвижимость №02-04- 01/116/2013-718 от 13.03.2013, №02-04-01/116/2013-720 от 13.03.2023, 02-04/101-04/301/046/2015-4477/1 от 01.06.2015, №02-04/101-04/301/046/2015-4480/1 от 01.06.2015, №02-04- 01/441/2012-382 от 27.12.2012. Техническое состояние: год постройки: 1975, материал стен: кирпич, высота помещений: 1 этаж 2,5м., 2,7м., подвал 2,26м., 2,5м., 2,68м., наличие коммуникаций: центральное отопление, электроснабжение, водоснабжение, канализация. Адрес: Республика Башкортостан, г. Уфа, Орджоникидзевский район, ул. Мира, д. 7
https: //catalog. lot-online. ru/index. php?dispatch=products. view&product_id=1599429
Реализация через аукцион! Нежилые помещения первого этажа и подвала девятиэтажного жилого здания . Кадастровый номер 02: 55: 030182: 168, 02: 55: 030182: 167, 02: 55: 030182: 608, 02: 55: 030182: 607, 02: 55: 030182: 560. Площадь объекта 1 324,8 кв. м., места общего пользования 22,5 кв. м. Этаж / этажность 1, подвал / 9. Обременения (ограничения) не зарегистрировано. Муниципальная собственность. Записи в Едином государственном реестре прав на недвижимость №02-04- 01/116/2013-718 от 13.03.2013, №02-04-01/116/2013-720 от 13.03.2023, 02-04/101-04/301/046/2015-4477/1 от 01.06.2015, №02-04/101-04/301/046/2015-4480/1 от 01.06.2015, №02-04- 01/441/2012-382 от 27.12.2012. Техническое состояние: год постройки: 1975, материал стен: кирпич, высота помещений: 1 этаж 2,5м., 2,7м., подвал 2,26м., 2,5м., 2,68м., наличие коммуникаций: центральное отопление, электроснабжение, водоснабжение, канализация. Адрес: Республика Башкортостан, г. Уфа, Орджоникидзевский район, ул. Мира, д. 7
https: //catalog. lot-online. ru/index. php?dispatch=products. view&product_id=1599429




















