Продажа офиса, Уфа, Интернациональная ул., 185, республика Башкортостан
- Регион
- Башкортостан республика
| Адрес | Уфа, Интернациональная ул., 185Объект на карте |
- Этаж
- -1 этаж в 1-этажном доме
- Общая площадь
- 253.60 м2
- Дата обновления
- 19.04.2026
Код лота: 62C46C9-4001-8235-3. Реализуется на торгах.
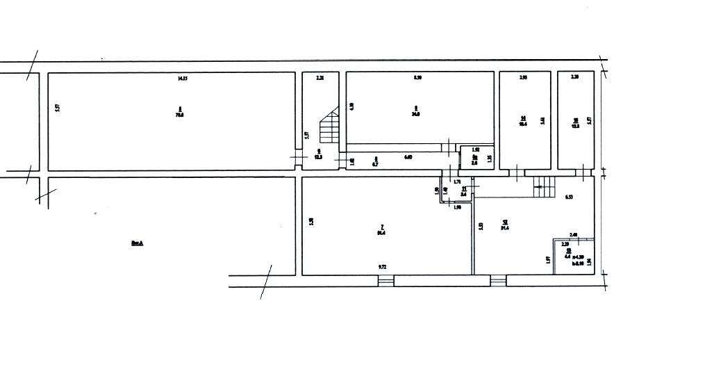
Нежилые помещения цокольного этажа пятиэтажного жилого здания. Кадастровый номер 02: 55: 030121: 663. Площадь объекта 253,6 кв. м. Этаж / этажность-цоколь / 5. Обременения (ограничения) не зарегистрировано. Муниципальная собственность. Запись в Едином государственном реестре прав на недвижимость № 02-04-01/253/2012-020 от 26.06.2012г. Год постройки: 1969, материал стен: кирпич, высота помещений: 2,10 м, наличие коммуникаций: центральное отопление, электроснабжение. Адрес: Республика Башкортостан, г. Уфа, Калининский район, ул. Интернациональная, 185/1.
https: //catalog. lot-online. ru/index. php?dispatch=products. view&product_id=1598063
Нежилые помещения цокольного этажа пятиэтажного жилого здания. Кадастровый номер 02: 55: 030121: 663. Площадь объекта 253,6 кв. м. Этаж / этажность-цоколь / 5. Обременения (ограничения) не зарегистрировано. Муниципальная собственность. Запись в Едином государственном реестре прав на недвижимость № 02-04-01/253/2012-020 от 26.06.2012г. Год постройки: 1969, материал стен: кирпич, высота помещений: 2,10 м, наличие коммуникаций: центральное отопление, электроснабжение. Адрес: Республика Башкортостан, г. Уфа, Калининский район, ул. Интернациональная, 185/1.
https: //catalog. lot-online. ru/index. php?dispatch=products. view&product_id=1598063













